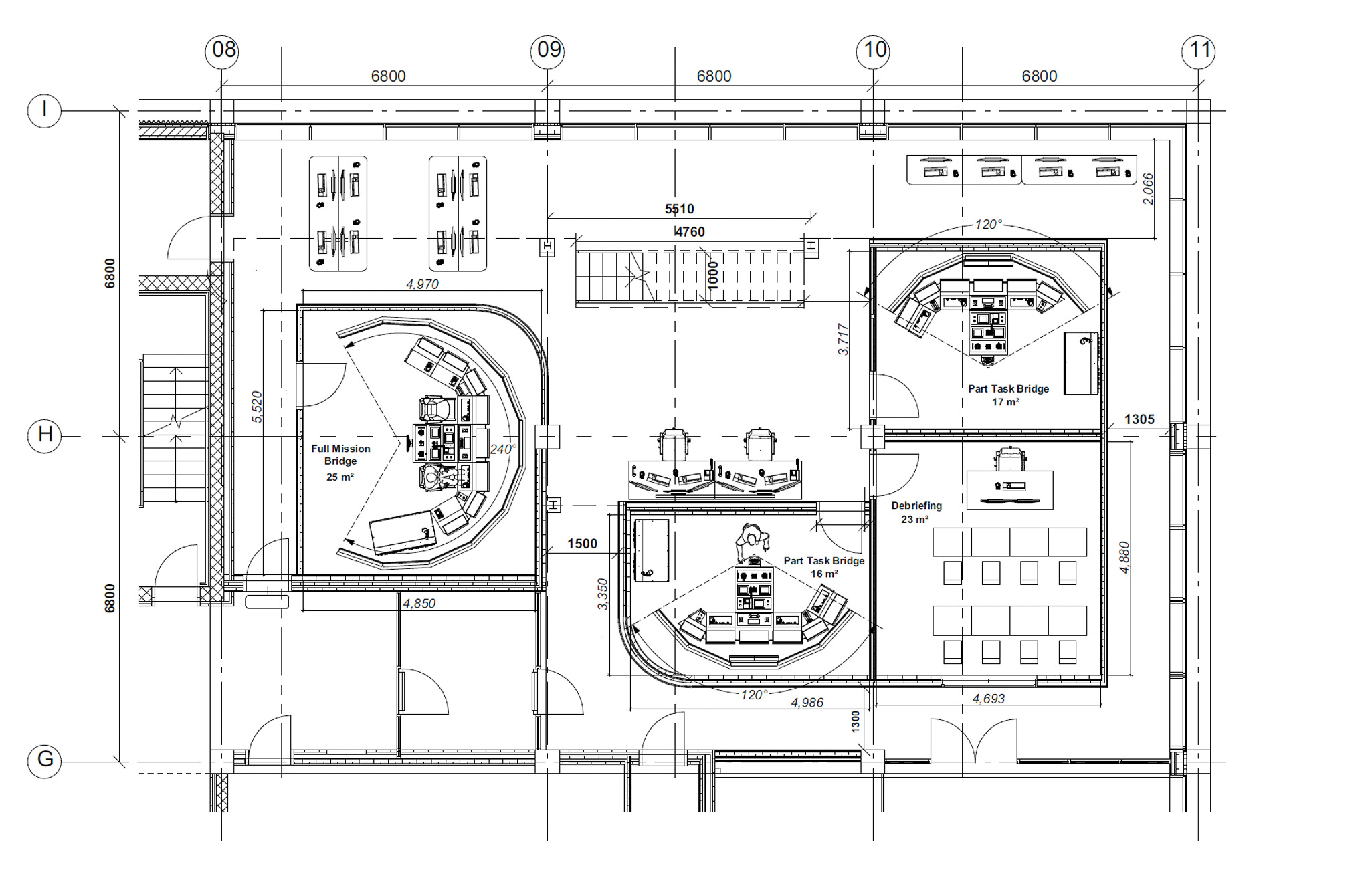
Vi er i fuld gang med en spændende opgave for SIMAC i Svendborg, hvor vi indretter seks avancerede simulatorrum og to debriefingrum til brug i uddannelsen af fremtidens styrmænd.
De buede rum opføres med bærende vægge i buet Fermacell, og indrettes med store 75” skærme, som tilsammen skal genskabe oplevelsen af at stå på broen af et skib. Der er hejst tunge stålkonstruktioner ind gennem facaden for at muliggøre den særlige indretning.
Opgave:
Simulatorrum
Bygherre:
SIMAC
Entrepriseform:
Tømrer









